
Aubervilliers
Aménageur : Plaine Commune
Maîtrise d'ouvrage : Nexity
Mandataire : Castro Denissof Associés
Surface : 13 195 m2
Label et certificats : NF Habitat HQE Profil A - Performances Termiques : RT 2012 -20% (social et résidence) RT 2012 - 10% (accession)
Montant des travaux : 20,8 M€
Date : Livré, conformité 2019
Habiter le ciel
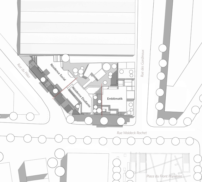
Construction de la tour Emblematik (R+18) de 88 logements en accession, d’un immeuble de 40 logements sociaux, d’une résidence étudiante de 113 chambres, de 75 places de parking et de 2 commerces.
À Aubervilliers, avec ce projet, nous sommes dans la suite d’une série de projets conceptuels, les chemins de l’urbanité. Un de ces chemins, Habiter le ciel, parle de l’urbanité verticale.
C’est l’aboutissement d’une réflexion qui prône qu’un beau et un bon morceau de ville, qu’il soit vertical ou horizontal, est un lieu qui doit rendre possible la rencontre, sans pour autant la rendre obligée.
Nous avons cherché à fabriquer un bâtiment qui produirait une séquence urbaine surprenante, riche et singulière. De grandes cours plantées disposées tous les quatre étages écrivent l’angle des rue Waldeck Rochet et des Gardinoux, et répondent à l’échelle de la place du Front Populaire. Le sol des cours plantées monte avec l’émergence à R+18, fabrique des seuils successifs, trouble la lecture du nombre de niveau et apaise la perception de la grande échelle.
Autour des chaque cours plantées s’organisent une vingtaine de logements en duplex, comme des maisons superposées, qui tout en enrichissant l’ordonnancement des façades donnent une grande qualité à l’habitat. La volumétrie se dessine autour des grandes séquences paysagées et par des retraits accueillant de généreuses loggias. On habite chez soi ou avec les autres, en commun dans un village vertical.
La variété des échelles en œuvre, double, quadruple, donne une très grande domesticité et citadinité au bâtiment.
La composition ambitieuse de l’ilot a favorisé un recours volontairement minimal aux matériaux. Les jeux volumétriques et de composition nécessitent une mise en valeur subtile et apaisée. C’est la notion de douceur et de chaleur qui a guidé les choix des tonalités et des matériaux.
Habiter le ciel à Aubervilliers borde la vaste place du Front Populaire dont la dimension à préfiguré l’échelle de de la tour. C’est aussi une réponse à l’impératif de compacité, de densité et d’intensité, composants incontournables de la ville en évolution.
C’est aussi une occasion inestimable de poser la question du vivre ensemble et de donner un écrin favorable à son possible épanouissement dans un lieu en mutation qui accueille le campus Condorcet, la Cité des Humanités et des Sciences Sociales, et dans lequel aujourd’hui frémit une vie de quartier.







































