Atelier d'Urbanité - Bobigny-Satie

Bobigny-Satie

Rue Erik Satie, 2021
Habitat
Réhabilitation
Tertiaire
Atelier d'Urbanité - Vue_Bobigny_Vue_Dalle_HD_08.jpg
Atelier d'Urbanité - 2059-BOB-Satie-Pers existant_ sur dalle.jpg
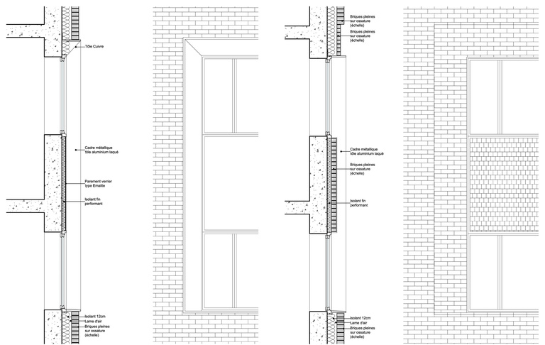
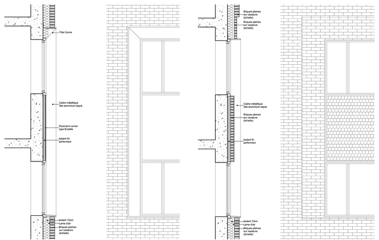
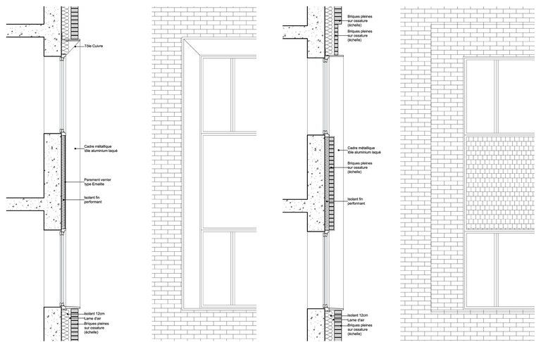
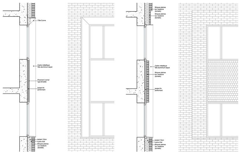
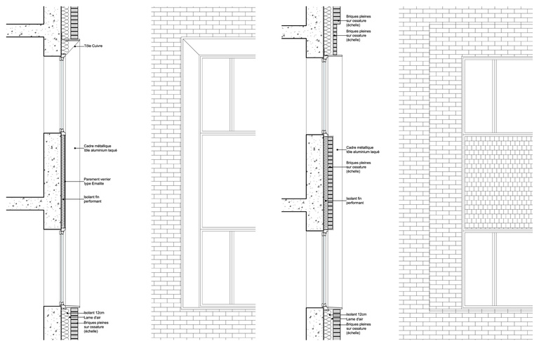
Atelier d'Urbanité - Bob_Satie-Elévations projet détails.jpg
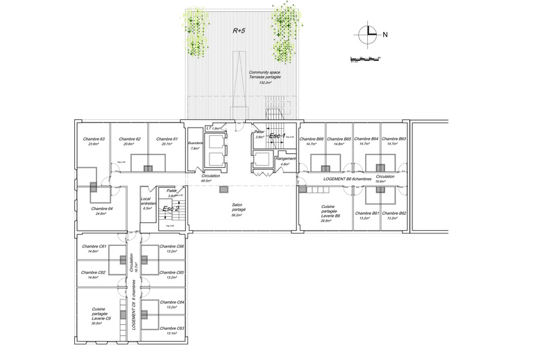
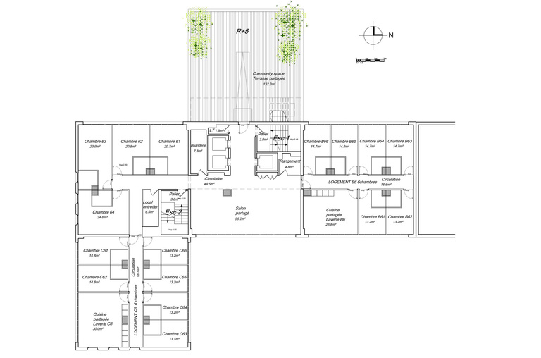
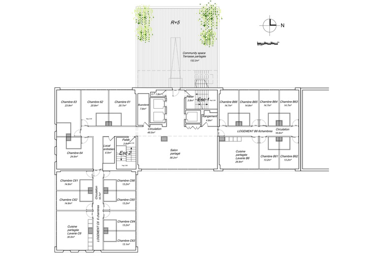
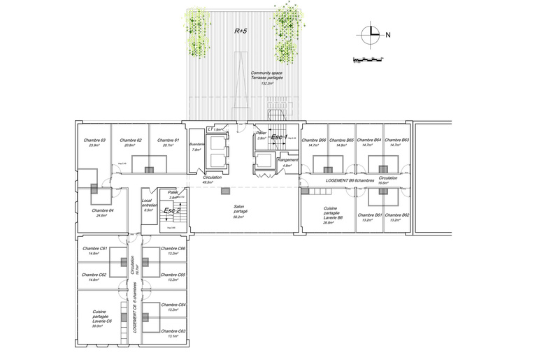
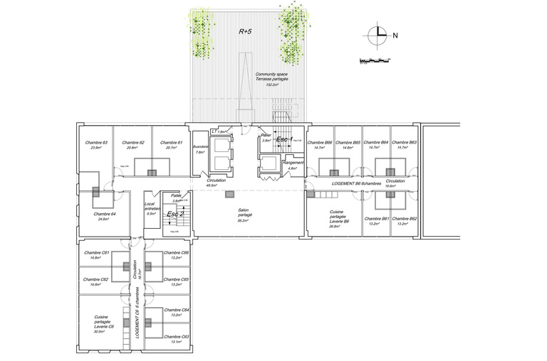
Atelier d'Urbanité - Plan_6ème étage et terrasse.jpg
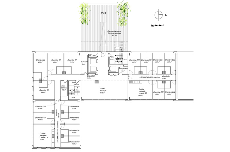
Atelier d'Urbanité - Plan_etage courant.jpg
Atelier d'Urbanité - 2059-BOB-Satie-Pers existant_place.jpg
Atelier d'Urbanité - Vue_Bobigny_Vue_Place_HD_06.jpg