
Champigny-sur-marne
Maîtrise d'ouvrage : Pichet
Mandataire : Castro Denissof Associés
Surface :
Logements : 2 400 m² - Commerces : 75m²
labels et Certificats : NF Habitat HQE -
Performances Thermiques : RT 2012
Montant des travaux : 4,2 M€
Date : PC septembre 2018, démarrage chantier 2019
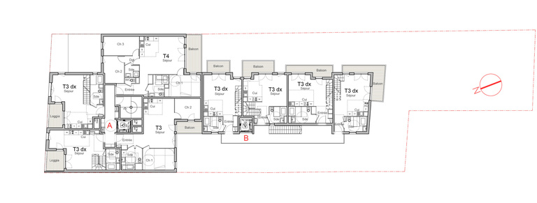
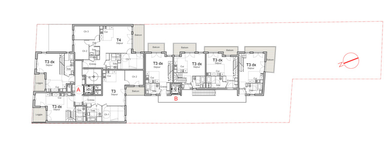
Construction de 39 logements collectifs (20 logements sociaux et 19 logements en accession) avec commerces en RDC et 40 places de parking sur 2 niveaux (en sous-sol).
Notre intention est de fabriquer une façade qui propose une séquence urbaine surprenante, riche, s’éloignant d’un langage univoque et offrant le moyen d’identifier et de singulariser les parties qui la composent. L’ordonnancement de la façade dévoile la richesse des typologies. Le recours au duplex vient enrichir la composition et décrire des pas de deux que nous disposons dans les niveaux bas et dans les niveaux hauts de façon à jouer avec la perception et d’éviter l’écueil de l’empilement.
La verticalité est valorisée dans la perception du projet, tant dans la proportion du bâtiment que dans celles des ouvertures.
La visibilité du projet sur rue est succincte au regard de son développement en cœur d’ilot où trois volumes reliés entre eux par de longues coursives et des escaliers extérieurs sur la façade Ouest, et par de généreuses loggias sur la façade Est habitent le cœur d’ilot et accueillent un bosquet.
Équipe AU
Alexandra Douspis
Victoria Payet



