 
						Lorient - Quai de Rohan
Maîtrise d’ouvrage : Lorient HLM
Maîtrise d’œuvre : Roland Castro - Sophie Denissof J.L Pellerin - AURA - C Gautier - AUL
BET structure : A.U.A Structures - ETHIS
Bureau de contrôle : Appave
Coordination : CSP
Paysagiste : R. Desormeaux
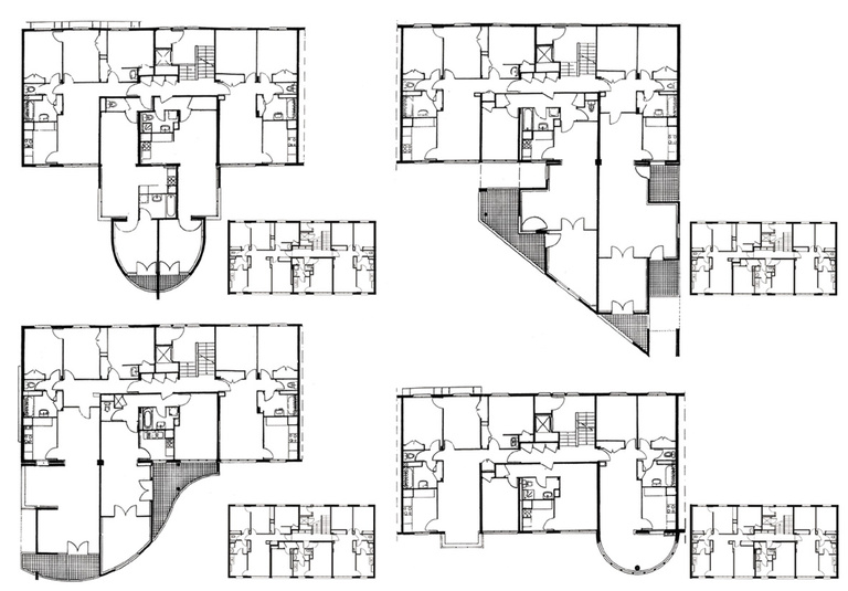
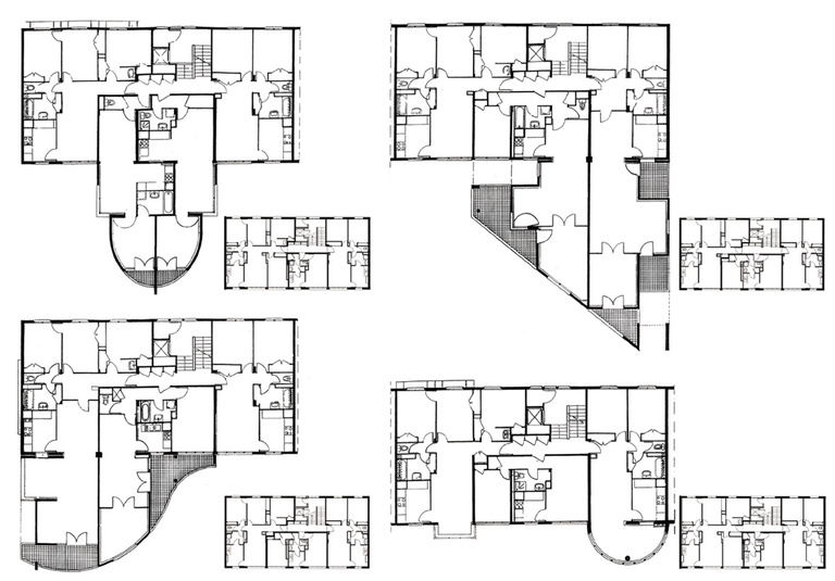
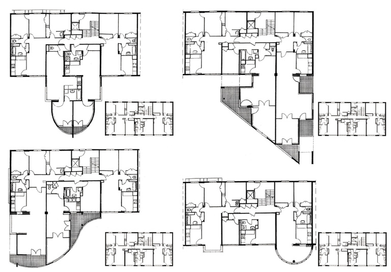
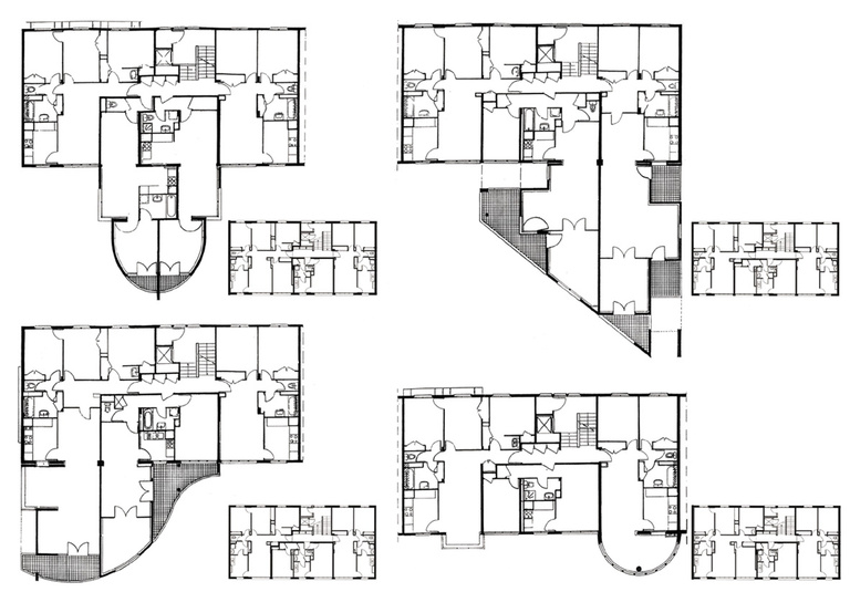
Programme : Réhabilitation de 480 logements concours, projet lauréat 1989
Calendrier : début chantier : janvier 1992
Fin chantier : février 1996
Coût : valeur des travaux (février 1996)
16 921 840 euros
Surfaces : hors oeuvre nette 38 000 m2
Tout le travail que nous avons mené pendant près de 7 ans sur le Quai de Rohan à Lorient a été l’occasion de mettre en oeuvre une nouvelle façon de produire de la ville : le remodelage.
En partant de bâtiments existants, d’une histoire urbaine déjà engagée, d’un tissu social constitué, nous avons pratiqué ce que l’on peut entendre dans le terme évocateur de “judo urbain” : le retournement radical d’une situation urbaine, sans recours à la tabula rasa.
Par delà une démarche traditionnelle de réhabilitation, remodeler signifie une approche rigoureuse, systématique de l’existant. La volonté de réintégrer les quartiers dans une urbanité plus vaste. Un dessin urbain qui retrouve les grands thèmes, oubliés un temps, de la rue, de la place, de l’ombre, du recoin. Un engagement social sans aucune lassitude, au cas par cas s’il le faut. Un investissement financier qui dépasse largement les prestations de la palulos classique. Une volonté politique affirmé.
 
						 
						 
						 
						 
						 
						 
						 
						 
						 
						 
						 
						 
						 
						 
						 
						 
						 
						 
						 
						 
						 
						 
						 
						 
						 
						 
						 
						 
						 
						 
						 
						 
						 
						