Atelier d'Urbanité - Marseille

Marseille

Quartier de la Joliette, 2008
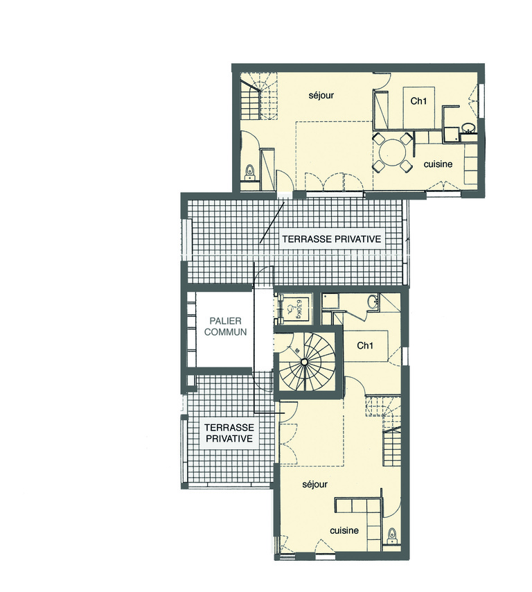
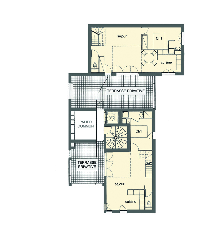
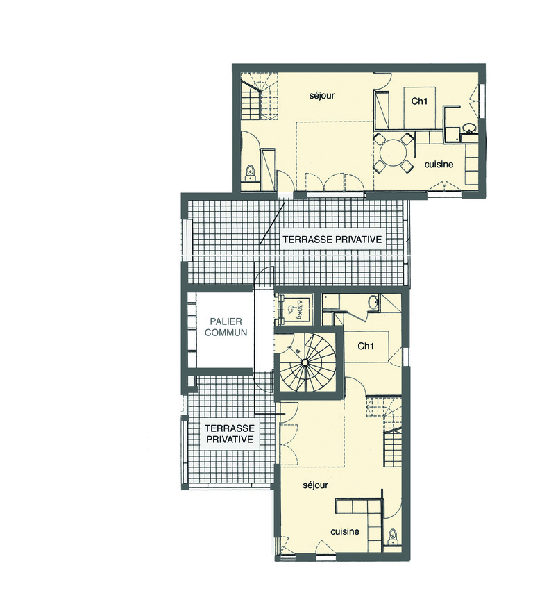
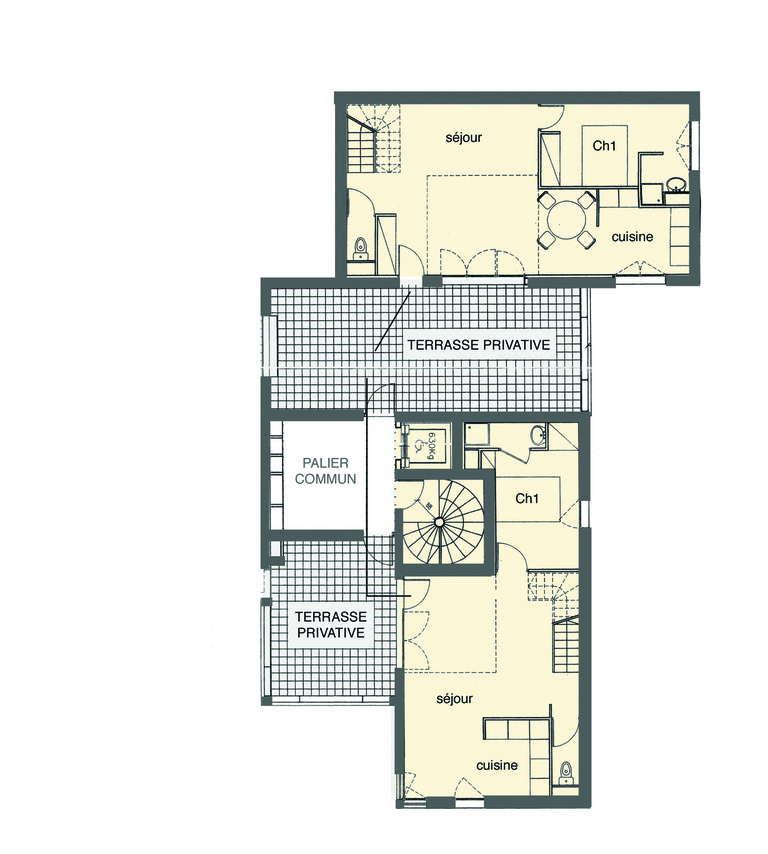
Habitat
Projet Urbain

Aménageur : Euroméditerranée
Maîtrise d'ouvrage : OPAC Sud Marseille, Nexity
Mandataire : Castro Denissof Associés
Surface : 16 604 m²
Montant des travaux : 14,9 M€
Date : études, 2003 et livraison, 2008.

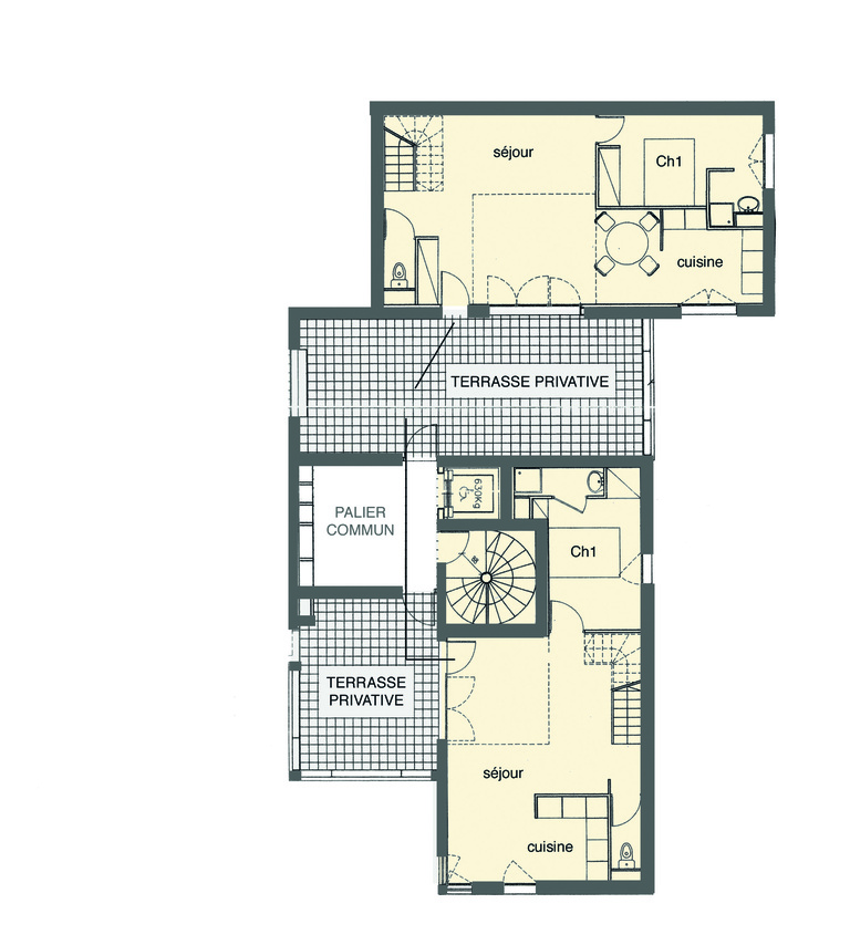
Construction de 109 logements collectifs privés dont 35 logements collectifs sociaux et de parkings souterrains.
Pyramide d’Or, 2004

Voir plus

Le bonheur d’habiter
Un morceau de l’âme de Marseille à la Joliette

Sur un grand îlot du quartier de la Joliette, nous avons fabriqué un petit bout de l’âme de Marseille : une vieille usine réhabilitée en lofts, de maigres immeubles hiératiques, faits de villas superposées, au milieu de maisons individuelles avec jardin. 
Le lieu semble déjà sédimenté par des coexistences contrastées, une variété de profondeurs, de secrets et des manières multiples d’habiter. 
C’est vraiment Marseille.

Crédit photos
Cyrille Weiner

Rétracter
Atelier d'Urbanité - wec1010_rcd_joliette_6859-07.jpg
Atelier d'Urbanité - wec1010_rcd_joliette_6859-10.jpg
Atelier d'Urbanité - wec1010_rcd_joliette_6860-01.jpg
Atelier d'Urbanité - wec1010_rcd_joliette_6860-03.jpg
Atelier d'Urbanité - wec1010_rcd_joliette_6861-04.jpg
Atelier d'Urbanité - wec1010_rcd_joliette_6862-09.jpg
Atelier d'Urbanité - wec1010_rcd_joliette_6863-3.jpg
Atelier d'Urbanité - wec1010_rcd_joliette_6864-04.jpg
Atelier d'Urbanité - wec1010_rcd_joliette_6864-06.jpg
Atelier d'Urbanité - wec1010_rcd_joliette_6865-04.jpg
Atelier d'Urbanité - wec1010_rcd_joliette_6866-02.jpg
Atelier d'Urbanité - wec1010_rcd_joliette_6866-05.jpg
Atelier d'Urbanité - wec1010_rcd_joliette_6867-01.jpg
Atelier d'Urbanité - wec1010_rcd_joliette_6867-06.jpg
Atelier d'Urbanité - wec1010_rcd_joliette_6867-06HD.jpg
Atelier d'Urbanité - wec1010_rcd_joliette_6868-02.jpg
Atelier d'Urbanité - wec1010_rcd_joliette_6868-09.jpg
Atelier d'Urbanité - wec1010_rcd_joliette_6869-03.jpg
Atelier d'Urbanité - wec1010_rcd_joliette_6869-04.jpg
Atelier d'Urbanité - wec1010_rcd_joliette_6869-08.jpg
Atelier d'Urbanité - wec1010_rcd_joliette_6870-1.jpg
Atelier d'Urbanité - wec1010_rcd_joliette_6870-1HD.jpg
Atelier d'Urbanité - wec1010_rcd_joliette_6870-5.jpg
Atelier d'Urbanité - wec1010_rcd_joliette_6870-9.jpg
Atelier d'Urbanité - wec1010_rcd_joliette_6871-04.jpg
Atelier d'Urbanité - wec1010_rcd_joliette_6871-07.jpg
Atelier d'Urbanité - wec1010_rcd_joliette_6871-09.jpg
Atelier d'Urbanité - 3 - marseille detail mars1_nb.jpg
Atelier d'Urbanité - 3 - marseille detailmars1_nb.jpg
Atelier d'Urbanité - 3 - marseille plan2_nb.jpg
Atelier d'Urbanité - 3 - marseille principe.jpg
Atelier d'Urbanité - PERS3.jpg