 
						Montigny-Lès-Cormeilles
Maîtrise d'ouvrage : Ville de Montigny les Cormeilles
Maîtrise d'oeuvre mandataire : AURC Architecte mandataire
Équipe : Alienor (BET TCE), Atelier NOUS (Paysage), ABC Décibel (Acoustique), Arwytec (Cuisiniste), Soler (Performance environnementale)
Surface : SU 2 877m² | SDP : 3 526m²
Montant travaux : 8.1M € HT
Labels & Certificats : RE2020, BDF, ECRAINS, BiodiverCity
Date: Concours 2023
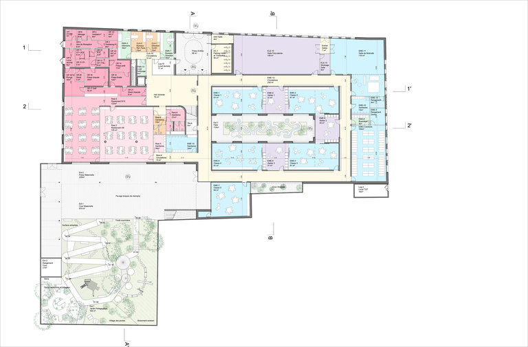
Concours pour la réalisation d’un groupe scolaire de 14 classes : 5 classes maternelles ; 9 classes élémentaires ; CLSH ; cuisine et restaurant.
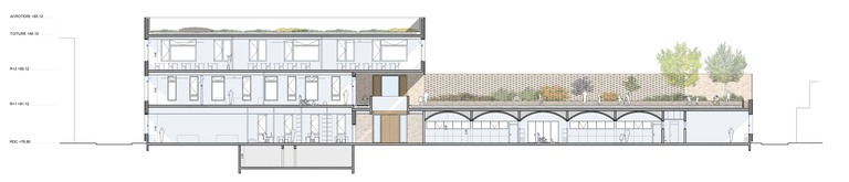
Le groupe scolaire se développe sur un grand linéaire et nous agrémentons ses longues façades de séquences qui parlent de la diversité des programmations. L’organisation intérieure de l’école et ses dispositifs spatiaux sont pensés à la lumière de la fabrication d’un cadre d’apprentissage moderne et confortable, favorable au développement des projets pédagogiques innovants, sans omettre toutefois les valeurs appropriatives et symboliques qui accompagneront les élèves dans le récit de leur scolarité.
C’est ainsi que nous avons croisé à la nécessaire fonctionnalité la part de poésie, d’imaginaire et de beauté qui participent de la fabrication d’une vie scolaire conviviale.
Nous avons déployé à tous les niveaux des patios, des cours, des jardins de façon à enrichir le rapport à l’extérieur et d’en multiplier les usages, les ambiances et les temporalités.
Équipe A'U
Antoine Desaleux
Daria Dubois-Ilina
Francesco Corona
 
						 
						 
						 
						 
						 
						 
						 
						 
						 
						 
						 
						 
						 
						 
						 
						