
New-York - 14th
West 14th Street, 2014
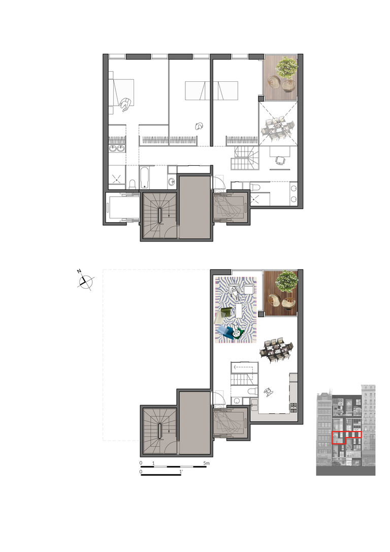
Habitat
Conception d’un immeuble de logements avec commerces en rez-de-chaussée sur la 14ème rue.
Maîtrise d'ouvrage : Foxstone Group
Mandataire : Castro Denissof Associés
Surface : 2 000 m²
Date : études, 2014.
Une petite folie new-yorkaise
Sur une artère new-yorkaise majeure et dans des rapports de mitoyenneté urbaine très dense, un petit bâtiment s’installe entre rue et cour, comme un bijou noir serti de doré. La façade met l’accent sur l’homothétie des proportions verticales et raconte la richesse des typologies et le luxe de l’habitat : double hauteur, jardin d’hiver, atelier d’artiste. En attique un retrait permet de dégager une terrasse généreuse.
Équipe A'U
Elsa Jaulneau Labarre
Perspective
Meno meno più






