Atelier d'Urbanité - Suresnes

Suresnes

La Cité-Jardin, 2024
Habitat
Réhabilitation

Maîtrise d’ouvrage : Hauts de Seine Habitat
Mission effectuée :  mission de maîtrise d'oeuvre complète, mandataire du groupement
Équipe : DORE SCALABRE ARCHITECTES, architecte associé
Michel Desvigne Paysagiste
OTEIS, BET TCE
Sigma Acoustique
Omega Alliance, Amiante et Plomb
Surface : 28 000m²
Labels & Certificats : Certification NF HQE Habitat, Label BBC Effinergie Rénovation , Label Bâtiment Biosourcé niveau 1
Montant travaux :  47 070 000 € HT
Date : Concours, Février 2024

 

Réhabilitation lourde et restructuration de 17 bâtiments de la
Cité-Jardin de Suresnes, concours 

Voir plus

La cité-jardin de Suresnes, construite entre 1921 et 1956 par Alexandre Maistrasse et Julien Quoniam puis Félix Dumai, représente un exemple remarquable de cité jardin en France offrant un cadre de vie d’un nouveau genre, entre ville et campagne, entre ville et nature. La cité-jardin, porteuse de progrès et d’innovation pour son époque, reste exemplaire et inspirante encore aujourd’hui.

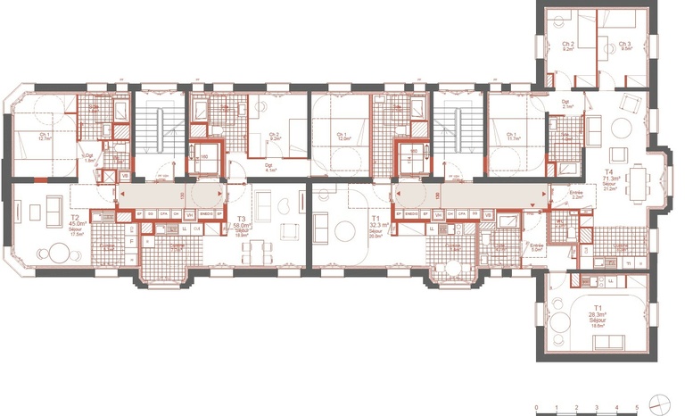
Hauts de Seine Habitat initie une réhabilitation lourde, en milieu vide, très ambitieuse de 523 logements répartis en 17 bâtiments répondant aux normes thermiques, acoustiques et d’accessibilité actuelles afin de moderniser ce modèle social remarquable et de renouveler ce patrimoine urbain, architectural et paysager exceptionnel.

Aussi notre projet prévoit de rénover l’enveloppe extérieure des bâtiments à l’identique, de restructurer l’intérieur des bâtiments et de repenser les espaces extérieurs pour désimperméabiliser les sols et accueillir une végétation généreuse hôte de biodiversité.
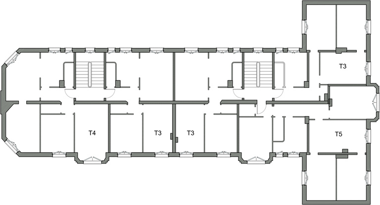
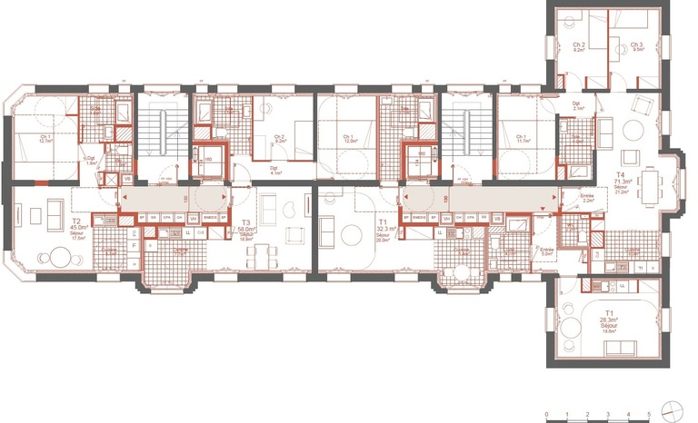
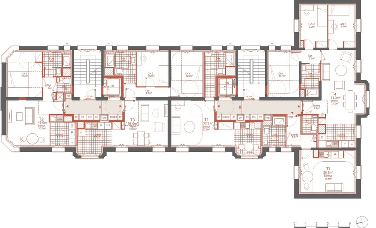
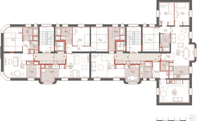
La restructuration intérieure vise à mettre en valeur le caractère années 30 des bâtiments en préservant et en rénovant les parties communes existantes et leur décoration d’origine de qualité. Avec l’implantation d’ascenseurs et en conservant le fonctionnement originel des bâtiments, cette restructuration permet de rendre accessible l’ensemble des logements. Avec une souplesse de répartition typologique des niveaux, ceux-ci sont réorganisés en logements confortables et adaptés aux personnes à mobilité réduite.

Rétracter
Atelier d'Urbanité - 2 - PLAN MASSE 1-250 .jpg
Atelier d'Urbanité - EXISTANT SURESENES MDP TE (56).JPG
Atelier d'Urbanité - Suresnes_CitéJardin_BAT 16_Etage Courant Existant.jpg
Atelier d'Urbanité - PERS JARDIN_finale.png
Atelier d'Urbanité - 2327_SUR_BAT 16_EC2.jpg
Atelier d'Urbanité - 2327_SUR_Cite Jardin_Schema principe compo typos_page-0001.jpg
Atelier d'Urbanité - PERS HALL_finale_variante.png
Atelier d'Urbanité - 2327_SUR_Cite Jardin_Schema principe combis typos_page-0001.jpg
Atelier d'Urbanité - PERS EDICULE_finale.png
Atelier d'Urbanité - 1 - PLAN MASSE 1-500.jpg