Atelier d'Urbanité - Vénissieux

Vénissieux

Groupe scolaire Flora Tristan, 2016
Projet mixte

Maîtrise d’ouvrage : Ville de Vénissieux
Mandataire : Castro Denissof Associés
Équipe : Mandragore (paysagiste), Bérim (BET économie et TCE), AGI2D (BET développement durable), Impédance (BET acoustique)
Surface : 3 903 m²
Montant travaux : 7,3 M€
Label : Objectif BBC
Date : Concours, 2013 et livraison, 2016.

Célébrer les valeurs républicaines
L’école Flora Tristan entre tradition et modernité

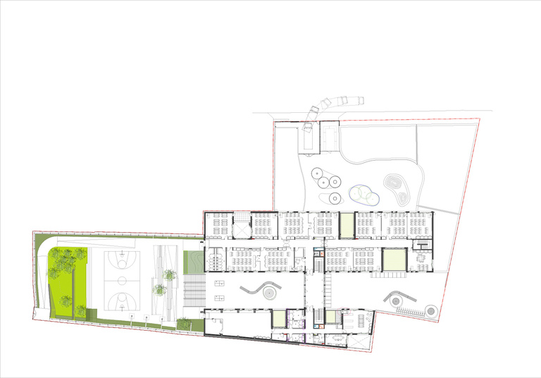
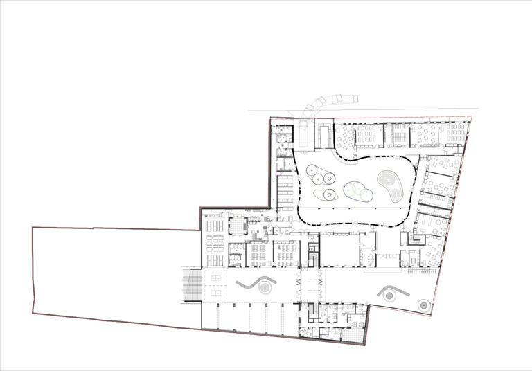
Construction d’un groupe scolaire comprenant une école maternelle, une école élémentaire, un restaurant maternel, un self élémentaire et des espaces extérieurs.

Voir plus

La conception d’une école invite à revisiter les dimensions symboliques inhérentes aux valeurs de l’éducation républicaine. Cela se traduit ici par un bâtiment qui présente un visage calme et enveloppant à l’intérieur un cocon pour l’espace des maternelles et plus de rigueur pour l’école élémentaire, en vis-à-vis de la ville. L’école s’inscrit dans le terroir local de par l’usage de la brique, traitée comme un mur en pisé, en référence aux strates sédimentaires qui ont constitué le paysage de Vénissieux. Le gabarit bas permet une intégration harmonieuse dans l’environnement pavillonnaire du quartier. Une attention est portée à la fluidité des parcours, à un bel apport de lumière et à la générosité des espaces communs.

Rétracter
Atelier d'Urbanité - CASTRO-DENISSOF-VENISSIEUX-040-P03-VF.jpg
Atelier d'Urbanité - CASTRO-DENISSOF-VENISSIEUX-104-VF.jpg
Atelier d'Urbanité - CASTRO-DENISSOF-VENISSIEUX-108-VF.jpg
Atelier d'Urbanité - CASTRO-DENISSOF-VENISSIEUX-111-VF.jpg
Atelier d'Urbanité - CASTRO-DENISSOF-VENISSIEUX-127-VF.jpg
Atelier d'Urbanité - 1311-VEN-007.jpg
Atelier d'Urbanité - CASTRO-DENISSOF-VENISSIEUX-299-VF.jpg
Atelier d'Urbanité - CASTRO-DENISSOF-VENISSIEUX-013-VF.jpg
Atelier d'Urbanité - CASTRO-DENISSOF-VENISSIEUX-027-VF.jpg
Atelier d'Urbanité - CASTRO-DENISSOF-VENISSIEUX-029-P01-VF.jpg
Atelier d'Urbanité - 1310-VEN-CHA-PL-00-A1-plan-clean.jpg
Atelier d'Urbanité - 1310-VEN-CHA-PL-01-A1-200-clean.jpg
Atelier d'Urbanité - CASTRO-DENISSOF-VENISSIEUX-052-VF.jpg
Atelier d'Urbanité - CASTRO-DENISSOF-VENISSIEUX-055-VF.jpg
Atelier d'Urbanité - CASTRO-DENISSOF-VENISSIEUX-066-VF.jpg
Atelier d'Urbanité - CASTRO-DENISSOF-VENISSIEUX-074-VF.jpg
Atelier d'Urbanité - CASTRO-DENISSOF-VENISSIEUX-131-VF.jpg
Atelier d'Urbanité - CASTRO-DENISSOF-VENISSIEUX-133-P10-VF.jpg
Atelier d'Urbanité - CASTRO-DENISSOF-VENISSIEUX-139-P12-VF.jpg
Atelier d'Urbanité - CASTRO-DENISSOF-VENISSIEUX-148-VF.jpg
Atelier d'Urbanité - CASTRO-DENISSOF-VENISSIEUX-151-P14-VF.jpg
Atelier d'Urbanité - CASTRO-DENISSOF-VENISSIEUX-153-P15-VF.jpg
Atelier d'Urbanité - CASTRO-DENISSOF-VENISSIEUX-301-VF.jpg
Atelier d'Urbanité - CASTRO-DENISSOF-VENISSIEUX-159-VF.jpg
Atelier d'Urbanité - CASTRO-DENISSOF-VENISSIEUX-164-P16-VF.jpg
Atelier d'Urbanité - CASTRO-DENISSOF-VENISSIEUX-174-VF.jpg
Atelier d'Urbanité - CASTRO-DENISSOF-VENISSIEUX-176-VF.jpg
Atelier d'Urbanité - CASTRO-DENISSOF-VENISSIEUX-187-P19-VF.jpg
Atelier d'Urbanité - CASTRO-DENISSOF-VENISSIEUX-199-VF.jpg
Atelier d'Urbanité - CASTRO-DENISSOF-VENISSIEUX-210-P20-VF.jpg
Atelier d'Urbanité - CASTRO-DENISSOF-VENISSIEUX-215-VF.jpg
Atelier d'Urbanité - CASTRO-DENISSOF-VENISSIEUX-217-VF.jpg
Atelier d'Urbanité - CASTRO-DENISSOF-VENISSIEUX-219-VF.jpg
Atelier d'Urbanité - CASTRO-DENISSOF-VENISSIEUX-240-VF.jpg
Atelier d'Urbanité - CASTRO-DENISSOF-VENISSIEUX-266-VF.jpg
Atelier d'Urbanité - CASTRO-DENISSOF-VENISSIEUX-271-VF.jpg
Atelier d'Urbanité - CASTRO-DENISSOF-VENISSIEUX-285-VF.jpg